This home is for sale by End Date Sale. All offers to be presented by 4th August 2025. The owner reserves the right to accept offers prior to this date if suitable.
***Price Guide*** - Mid $1m's
Tucked away in the tranquil heart of Cardup, unseen from the road and surrounded by nature, this extraordinary rural estate is the epitome of seclusion, scale, and serenity. Set on a sprawling 5 acre parcel, this never-lived-in, owner-built home offers a rare opportunity to secure a premium lifestyle property where vision, freedom, and legacy converge.
INSIDE
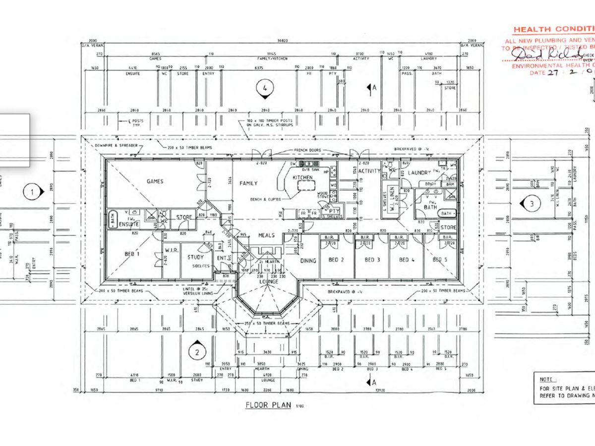
Step through double doors into an expansive 356m² residence designed with family living and entertaining in mind. Boasting five oversized bedrooms (with potential for a sixth), all guest rooms feature built-in wardrobes, while the master suite is a luxurious retreat complete with a freestanding bath, walk-in robe, and a stunning ensuite with double vanities.
The heart of the home showcases soaring ceilings, a wood fireplace, and a vast open-plan layout combining the kitchen, meals, and family zones. The chef’s kitchen is both practical and beautiful, fitted with stone benchtops, a standalone oven, breakfast bar, massive walk-in pantry, and even a second kitchen/island setup—perfect for entertainers or large families.
Multiple living spaces include a theatre/games room with ambient downlights and double doors, a study, activity/hobby zone, and a huge games area—ideal for teenagers or multi-generational families. Jarrah floorboards throughout add warmth and character, and the home includes multiple walk-in storage cupboards for added convenience.
OUTSIDE
With 2HA zoned 'Rural Residential' and the wider estate offering approx. 5 acres of natural beauty, the potential is enormous—whether for animals, stables (STCA), or simply enjoying wide open space. There’s a huge shed with power and room for serious machinery, a 200,000L rainwater tank, and an open fireplace area perfect for starlit gatherings.
A bore has been installed (not yet connected), while a septic/Envirosafe system is already in place. This is a property where lifestyle meets functionality in every detail.
SUSTAINABILITY & FUTURE POTENTIAL
Rainwater tank (200kL)
Bore in place
Septic/envirosafe waste system
Potential for stables or granny flat up to 100m² (STCA)
Zoned Rural Residential – Keeping of animals permitted with approval
LOCATION
Private, peaceful, and perfectly placed—this address combines the freedom of rural living with convenient access to nearby amenities, schools, and arterial roadways. Whether you’re seeking a peaceful family haven or a legacy estate to shape into your dream lifestyle, 60 Leaver Way Cardup is your canvas.
*Disclaimer: Some details in this advert have been obtained from a third-party source and may not be accurate. We encourage the reader to make their own enquiries into any specifics and consider the ones in this advert to be ‘approximate’ only. Photoshopped furniture has been included in these images to provide viewers with an idea of layout.
Features
- Fully Fenced
- Study
- Water Tank











